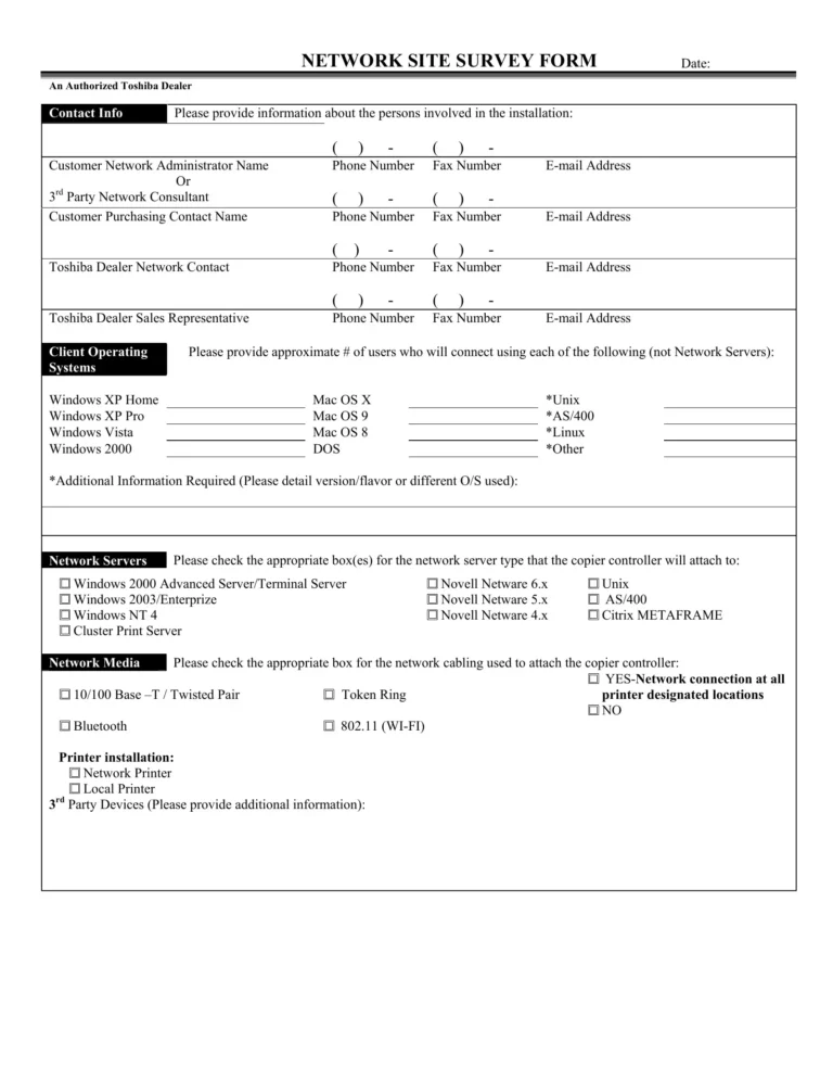
Network Cabling Site Survey Template

A network cabling site survey template provides a structured approach for gathering information and documenting the existing network cabling infrastructure at a site. It serves as a valuable tool for planning, designing, and implementing network cabling projects, ensuring that the resulting network meets the specific requirements and objectives of the organization.

The benefits of using a network cabling site survey template include:

Read more

Data Center Site Survey Template

Data center site survey template is a document that provides a comprehensive overview of a data center’s physical infrastructure, including its layout, power distribution, cooling systems, and security measures. It is used by data center operators to assess the suitability of a site for data center construction or expansion, and to plan for the installation and operation of data center equipment. A data center site survey template typically includes the following information:
  • Site location and description
  • Physical infrastructure
  • Power distribution
  • Cooling systems
  • Security measures
  • Environmental impact assessment

Data center site survey templates are essential for ensuring that data centers are built and operated in a safe and efficient manner. They help data center operators to identify potential risks and hazards, and to develop mitigation plans to address them. They also help to ensure that data centers are compliant with all applicable laws and regulations. Investing in a data center site survey template can save data center operators time and money in the long run, and can help to avoid costly mistakes.

Read more

Audio Visual Site Survey Template

An audio visual site survey template is a tool used to assess the audio and visual capabilities of a space. It is used to determine what equipment is needed to create a desired audio and visual experience. The template typically includes a list of questions about the space, such as its size, shape, and purpose. It also includes a list of potential equipment options, such as speakers, microphones, and projectors.

Using an audio visual site survey template can provide several benefits. First, it can help to ensure that the right equipment is selected for the space. Second, it can help to avoid costly mistakes, such as purchasing equipment that is not compatible with the space or that does not meet the needs of the users. Third, it can help to create a more efficient and effective audio visual system.

Read more